Patio Apartments

Patio Apartments w Koszalinie 2- pokojowe mieszkanie A10

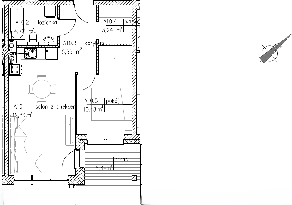
Rzut kondygnacji
Mapa inwestycji
Rzut stanowi plan lokalu, zaś przedstawione dodatkowo sprzęty są jedynie poglądowe i nie stanowią oferty zgodnie Art. 66 Kodeksu Cywilnego.
ikona budynku B
ikona schody 2 piętro
ikona pokój 2 pokoje
ikona metrów 43.99 m²
ikona ceny 8800 zł/m²
387 112,00 zł
brutto
Termin realizacji: III kwartał 2027
Dodaj do ulubionych
Zestawienie powierzchni
Salon z aneksem kuchennym19,86m²
Pokój10,48m²
Wnęka3,24m²
Łazienka4,72m²
Korytarz5,69m²

Dbamy o otoczenie
nie tylko o budynki

Sprawdź też inne lokale Patio Apartments

Winda
Winda

Wygodny dostęp na każde piętro

Wideodomofon
Wideodomofon

Wygodny dostęp na każde piętro

Osiedle ogrodzone
Osiedle ogrodzone

Bezpieczne i spokojne miejsce

Tarasy
Tarasy

Przestronne tarasy

Parking zewnetrzny
Parking zewnetrzny

Wygodny parking zewnętrzny

Monika Mikołajczak

Specjalista ds. sprzedaży

Sprawdź jak nam idzie
dziennik budowy

www.urbaniakinwestycje.pl
Monika Mikołajczak sprzedaz@patioapartments.pl tel: +48 730 740 667