Apartamenty Pogodne

Apartamenty Pogodne w Chojnicach 3-pokojowe mieszkanie 26

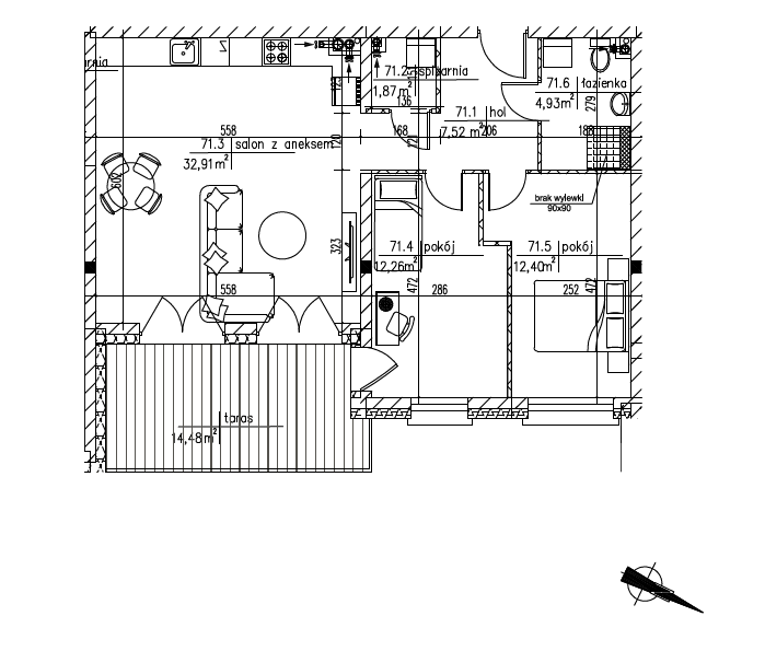
Rzut kondygnacji
Mapa inwestycji
Rzut stanowi plan lokalu, zaś przedstawione dodatkowo sprzęty są jedynie poglądowe i nie stanowią oferty zgodnie Art. 66 Kodeksu Cywilnego.
ikona budynku 6
ikona schody 1 piętro
ikona pokój 3 pokoje
ikona metrów 71.89 m²
ikona ceny 7500 zł/m²
539 175,00 zł
brutto
Termin realizacji: II kwartał 2026
Dodaj do ulubionych
Zestawienie powierzchni
hol7,52m²
salon z aneksem32,91m²
łazienka4,93m²
spiżarnia1,87m²
pokój12,26m²
pokój12,40m²

Dbamy o otoczenie
nie tylko o budynki

Sprawdź też inne lokale Apartamenty Pogodne

Winda
Winda

Wygodny dostęp na każde piętro

Wideodomofon
Wideodomofon

Wygodny dostęp na każde piętro

Osiedle ogrodzone
Osiedle ogrodzone

Bezpieczne i spokojne miejsce

Tarasy
Tarasy

Przestronne tarasy

Parking zewnetrzny
Parking zewnetrzny

Wygodny parking zewnętrzny

Udogodnienia dla niepełnosprawnych
Udogodnienia dla niepełnosprawnych

Łatwy dostęp dla osób z niepełnosprawnościami

Daria Czupa

Specjalista ds. sprzedaży

www.urbaniakinwestycje.pl
Daria Czupa sprzedaz@mieszkaniachojnice.pl tel: +48 605 906 020