Patio Apartments

Patio Apartments w Koszalinie 3- pokojowe mieszkanie D03

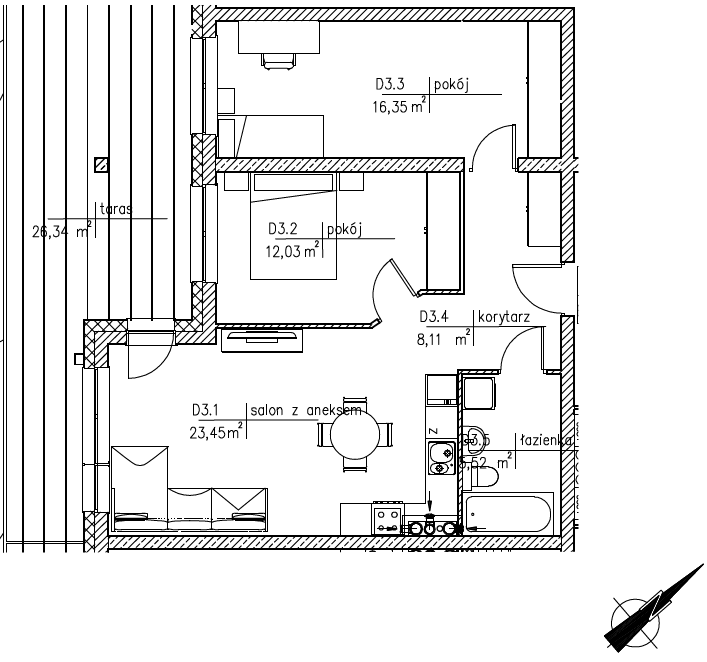
Rzut kondygnacji
Mapa inwestycji
Rzut stanowi plan lokalu, zaś przedstawione dodatkowo sprzęty są jedynie poglądowe i nie stanowią oferty zgodnie Art. 66 Kodeksu Cywilnego.
ikona budynku B
ikona schody 0 piętro
ikona pokój 3 pokoje
ikona metrów 65.46 m²
ikona ceny 8800 zł/m²
576 048,00 zł
brutto
Termin realizacji: III kwartał 2027
Dodaj do ulubionych
Zestawienie powierzchni
Salon z aneksem kuchennym23,45m²
Pokój12,03m²
Pokój16,35m²
Łazienka5,52m²
Korytarz8,11m²

Dbamy o otoczenie
nie tylko o budynki

Sprawdź też inne lokale Patio Apartments

Winda
Winda

Wygodny dostęp na każde piętro

Wideodomofon
Wideodomofon

Wygodny dostęp na każde piętro

Osiedle ogrodzone
Osiedle ogrodzone

Bezpieczne i spokojne miejsce

Tarasy
Tarasy

Przestronne tarasy

Parking zewnetrzny
Parking zewnetrzny

Wygodny parking zewnętrzny

Monika Mikołajczak

Specjalista ds. sprzedaży

Sprawdź jak nam idzie
dziennik budowy

www.urbaniakinwestycje.pl
Monika Mikołajczak sprzedaz@patioapartments.pl tel: +48 730 740 667