Mieszkanie z antresolą 48
3 piętro 55.01 m²

Nowoczesne mieszkanie
Dostępne od ręki

Z nami odbierasz klucze do w pełni wykończonego mieszkania. Każdy detal, od podłóg po oświetlenie, dopracowany jest z myślą o komforcie, estetyce i trwałości.

Soft Loft | Mieszkanie 48

Mieszkanie z antresolą 48

ikona budynku 1
ikona schody 3 piętro
ikona pokój 3 pokoje
ikona metrów 55.01 m²
ikona ceny 13997.46 zł/m²
770 000,00 zł
brutto
Termin realizacji: gotowe od zaraz
Dodaj do ulubionych

Apartamenty Soft Loft to propozycja, która zapewnia komfort podziału przestrzeni na strefę dzienną i relaksu.

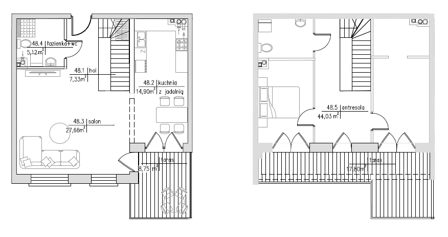
Na III piętrze znajduje się przestronna strefa życia codziennego – salon z aneksem kuchennym i wyjściem na taras, który naturalnie przedłuża przestrzeń i sprzyja codziennemu wypoczynkowi. Na tym poziomie zaprojektowano również komfortową łazienkę. Na antresolę prowadzą drewniane schody. Górna część mieszkania pełni funkcję prywatnej strefy – mieszczą się tu dwie wygodne sypialnie, w tym jedna z garderobą. Uzupełnieniem tej przestrzeni jest dodatkowa toaleta oraz wydzielone miejsce na pralkę, zapewniające maksymalną wygodę codziennego użytkowania.

Niewątpliwym atutem lokalu są dwa tarasy, na dwóch poziomach, stanowiące dodatkowe miejsce wypoczynku.

Zobacz na co możesz liczyć
wygoda i komfort

Proponujemy klientom ZDALNIE STEROWANE BRAMY wjazdowe prowadzące na teren ogrodzonego osiedla oraz do mieszczącej się pod budynkiem HALI GARAŻOWEJ. W budynkach są również WINDY. Spokój i bezpieczeństwo zapewniają sześciokomorowe okna trójszybowe. Podwyższyliśmy standard, instalując WIDEODOMOFONY. Z kolei innowacyjne podejście do aranżacji klatki schodowej sprawia, że inwestycja jest ciekawsza wizualnie i wygodniejsza dla mieszkańców.

Winda

Wygodny dostęp do każdeertego piętra

Wideodomofon

Bezpieczna kontrola dostępu do budynków

Zdalne sterowany

Inteligentne rozwiązania dla większej wygody

Osiedle ogrodzone

Spokój i prywatność dla mieszkańców

Tarasy

Idealna przestrzeń na chwile relaksu

Teren rekreacji

Miejsce do wypoczynku dla całej rodziny

Hala garażowa

Bezpieczne miejsce dla Twojego auta

Udogodnienia dla niepełnosprawnych

Przestrzeń dostępna dla wszystkich

Komórki lokatorskie

Dodatkowa przestrzeń do przechowywania

Galeria
Zobacz sam

Natalia Wirkus

Specjalista ds. sprzedaży

Zadzwoń +48 607 654 388

Mieszkanie
Więcej informacji

Rzut kondygnacji
Mapa inwestycji
Rzut stanowi plan lokalu, zaś przedstawione dodatkowo sprzęty są jedynie poglądowe i nie stanowią oferty zgodnie Art. 66 Kodeksu Cywilnego.
Zestawienie powierzchni
hol7,33 m²
kuchnia z jadalnią14,90 m²
salon27,66 m²
łazienka z wc5,12 m²
antresola44,03 m²
Rzut kondygnacji
Mapa inwestycji

Mieszkania dostępne od zaraz

Zobacz jak wygląda nasz standard wykonania i umów się na spotkanie.

Charakterystyka wykończenia

Drzwi

w kolorze czarnym z delikatnym żłobieniem

klamki w kolorze czarnym

Listwy przypodłogowe

listwy w kolorze czarnym

Podłoga

panele winylowe w odcieniu jasnoszarego drewna

Wykończenie ścian i sufitów

ściany malowane w kolorze szarym

sufit malowany w kolorze białym

dekoracyjna ścianka RTV z płyty MDF

Kontakty i włączniki

oprawy kontaktów i włączników w kolorze białym

przy zabudowie kuchennej w kolorze czarnym

Łazienki

płytka podstawowa w formacie 60 x 60 cm na posadzce i na ścianie w kolorze szarym

płytka dekoracyjna w formacie 120 x 60 cm o imitująca drewno

sufit malowany w kolorze białym

armatura w wykończeniu chromowym (baterie umywalkowe, zestaw prysznicowy z baterią prysznicową)

ceramika (umywalka, miska wc)

kabina prysznicowa typu walk-in

lustra z podświetleniem LED doświetlające twarz

szafki podumywalkowe w kolorze czarnym

przyciski spłuczki wc w kolorze czarnym

Kuchnia

zabudowa kuchenna z płyty laminowanej w subtelnym odcieniu szałwiowej zieleni, uzupełniona ciepłym dekorem drewna

blat kuchenny we wzorze delikatnego marmuru

uchwyty w kolorze czarnym

sprzęt AGD – lodówka, piekarnik, płyta indukcyjna, zmywarka oraz okap

zlewozmywak w kolorze czarnym

bateria w kolorze czarnym

Oprawy oświetleniowe

utrzymane w kolorystyce wnętrza

Meble ruchome

utrzymane w kolorystyce wnętrza

Natalia Wirkus

Specjalista ds. sprzedaży

Zobacz
inne realizacje

Mapa inwestycji