Apartamenty Pogodne

Apartamenty Pogodne w Chojnicach 4-pokojowe mieszkanie 02

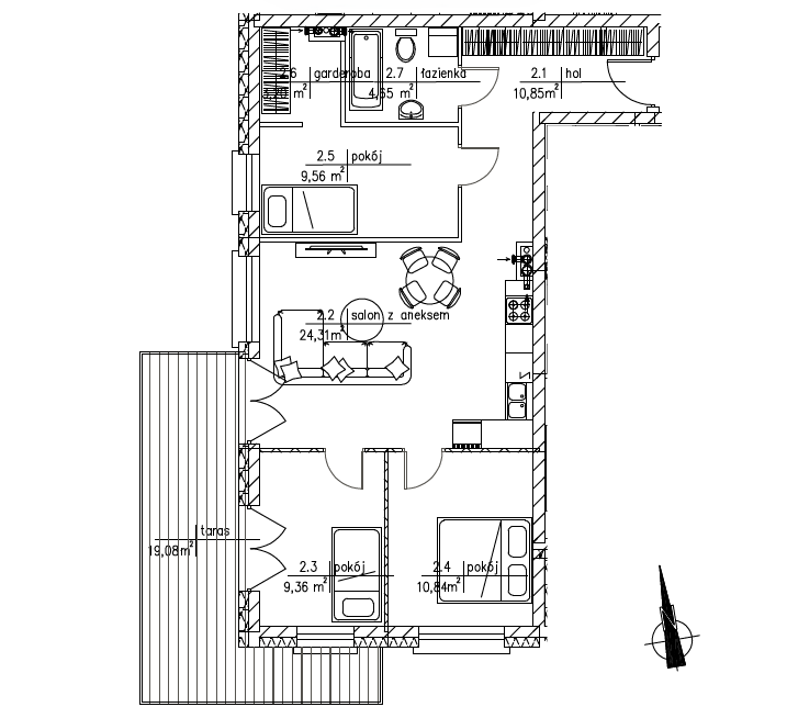
Rzut kondygnacji
Mapa inwestycji
Rzut stanowi plan lokalu, zaś przedstawione dodatkowo sprzęty są jedynie poglądowe i nie stanowią oferty zgodnie Art. 66 Kodeksu Cywilnego.
ikona budynku 7
ikona schody 0 piętro
ikona pokój 4 pokoje
ikona metrów 72.77 m²
ikona ceny 7700 zł/m²
560 329,00 zł
brutto
Termin realizacji: I kwartał 2027
Dodaj do ulubionych
Zestawienie powierzchni
hol10,85m²
salon z aneksem24,31m²
łazienka4,65m²
pokój9,56m²
garderoba3,20m²
pokój9,36m²
pokój10,84m²

Dbamy o otoczenie
nie tylko o budynki

Sprawdź też inne lokale Apartamenty Pogodne

Winda
Winda

Wygodny dostęp na każde piętro

Wideodomofon
Wideodomofon

Wygodny dostęp na każde piętro

Osiedle ogrodzone
Osiedle ogrodzone

Bezpieczne i spokojne miejsce

Tarasy
Tarasy

Przestronne tarasy

Parking zewnetrzny
Parking zewnetrzny

Wygodny parking zewnętrzny

Udogodnienia dla niepełnosprawnych
Udogodnienia dla niepełnosprawnych

Łatwy dostęp dla osób z niepełnosprawnościami

Daria Czupa

Specjalista ds. sprzedaży

www.urbaniakinwestycje.pl
Daria Czupa sprzedaz@mieszkaniachojnice.pl tel: +48 605 906 020