Mieszkanie z antresolą 50
3 piętro 57.22 m²

Nowoczesne mieszkanie
Dostępne od ręki

Z nami odbierasz klucze do w pełni wykończonego mieszkania. Każdy detal, od podłóg po oświetlenie, dopracowany jest z myślą o komforcie, estetyce i trwałości.

Mieszkanie z antresolą 50

ikona budynku 1
ikona schody 3 piętro
ikona pokój 3 pokoje
ikona metrów 57.22 m²
ikona ceny 13282.07 zł/m²
760 000,00 zł
brutto
Termin realizacji: gotowe od zaraz
Dodaj do ulubionych

Apartamenty Soft Loft to propozycja, która zapewnia komfort podziału przestrzeni na strefę dzienną i relaksu.

Na III piętrze znajduje się jasny, przestronny salon z wydzielonym aneksem kuchennym oraz strefą jadalnianą, tworzące spójną i komfortową przestrzeń do życia. Na tym poziomie zaprojektowano również łazienkę. Na antresolę prowadzą drewniane schody, które podkreślają charakter wnętrza. Górna kondygnacja stanowi strefę prywatną – mieści się tu sypialnia z garderobą, gabinet oraz łazienka z prysznicem typu walk-in.

Wyjątkowym atutem nieruchomości są dwa tarasy na różnych poziomach, oferujące kameralną przestrzeń do wypoczynku i relaksu.

Zobacz na co możesz liczyć
wygoda i komfort

Proponujemy klientom ZDALNIE STEROWANE BRAMY wjazdowe prowadzące na teren ogrodzonego osiedla oraz do mieszczącej się pod budynkiem HALI GARAŻOWEJ. W budynkach są również WINDY. Spokój i bezpieczeństwo zapewniają sześciokomorowe okna trójszybowe. Podwyższyliśmy standard, instalując WIDEODOMOFONY. Z kolei innowacyjne podejście do aranżacji klatki schodowej sprawia, że inwestycja jest ciekawsza wizualnie i wygodniejsza dla mieszkańców.

Winda

Wygodny dostęp do każdeertego piętra

Wideodomofon

Bezpieczna kontrola dostępu do budynków

Zdalne sterowany

Inteligentne rozwiązania dla większej wygody

Osiedle ogrodzone

Spokój i prywatność dla mieszkańców

Tarasy

Idealna przestrzeń na chwile relaksu

Teren rekreacji

Miejsce do wypoczynku dla całej rodziny

Hala garażowa

Bezpieczne miejsce dla Twojego auta

Udogodnienia dla niepełnosprawnych

Przestrzeń dostępna dla wszystkich

Komórki lokatorskie

Dodatkowa przestrzeń do przechowywania

Galeria
Zobacz sam

Natalia Wirkus

Specjalista ds. sprzedaży

Zadzwoń +48 607 654 388

Mieszkanie
Więcej informacji

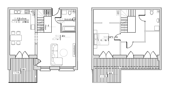
Rzut kondygnacji
Mapa inwestycji
Rzut stanowi plan lokalu, zaś przedstawione dodatkowo sprzęty są jedynie poglądowe i nie stanowią oferty zgodnie Art. 66 Kodeksu Cywilnego.
Zestawienie powierzchni
hol9,44 m²
kuchnia z jadalnią19,76 m²
salon22,76 m²
łazienka z wc5,26 m²
antresola45,74 m²
Rzut kondygnacji
Mapa inwestycji

Mieszkania dostępne od zaraz

Zobacz jak wygląda nasz standard wykonania i umów się na spotkanie.

Charakterystyka wykończenia

Drzwi

w kolorze białym z delikatnym żłobieniem

klamki w kolorze czarnym

Listwy przypodłogowe

listwy w kolorze białym

Podłoga

panele winylowe w kolorze jasnego drewna

Wykończenie ścian i sufitów

ściany malowane w kolorze białym

sufit malowany w kolorze białym

Kontakty i włączniki

oprawy kontaktów i włączników w kolorze białym

Łazienka

płytka podstawowa w formacie 60 x 60 cm na posadzce i na ścianie w kolorze szarym

płytka dekoracyjna w formacie 120 x 60 cm o imitująca drewno

sufit malowany w kolorze białym

armatura w wykończeniu chromowym (bateria umywalkowa, zestaw prysznicowy z baterią prysznicową)

ceramika (umywalka, miska wc)

wanna

kabina prysznicowa typu walk-in

lustra z podświetleniem LED doświetlające twarz

szafka podumywalkowa w kolorze białym

przycisk spłuczki wc w wykończeniu chromowym

Oprawy oświetleniowe

utrzymane w kolorystyce łączącej czerń ze złotym

Meble ruchome

utrzymane w kolorystyce wnętrza

Natalia Wirkus

Specjalista ds. sprzedaży

Zobacz
inne realizacje

Mapa inwestycji