Mieszkanie B13
1 piętro 61.63 m²

Nowoczesne mieszkanie
Dostępne od ręki

Z nami odbierasz klucze do w pełni wykończonego mieszkania. Każdy detal, od podłóg po oświetlenie, dopracowany jest z myślą o komforcie, estetyce i trwałości.

Mieszkanie B13

ikona budynku D
ikona schody 1 piętro
ikona pokój 3 pokoje
ikona metrów 61.63 m²
ikona ceny 10668.38 zł/m²
657 492 zł
brutto
Termin realizacji: gotowe od zaraz
Dodaj do ulubionych

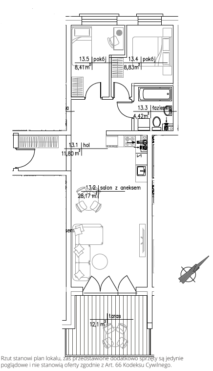
W mieszkaniu zastosowano funkcjonalny podział przestrzeni. Strefę dzienną tworzy salon z wydzielonym aneksem kuchennym oraz gotową zabudową kuchenną, co znacząco ułatwia szybkie urządzenie wnętrza. Dwie niezależne sypialnie dają szerokie możliwości aranżacyjne – mogą pełnić funkcję sypialni, pokoju dziecka, gabinetu lub pokoju gościnnego.

Dodatkowym atutem jest przestronny korytarz, który pozwala na wykonanie pojemnej zabudowy i zapewnia wygodne miejsce do przechowywania.

Mieszkanie posiada także taras 12 m2 z widokiem wychodzącym na wysokości korony drzew  – przyjemną, intymną przestrzeń do odpoczynku na świeżym powietrzu.

Zobacz na co możesz liczyć
wygoda i komfort

Proponujemy klientom ZDALNIE STEROWANE BRAMY wjazdowe prowadzące na teren ogrodzonego osiedla oraz do mieszczącej się pod budynkiem HALI GARAŻOWEJ. W budynkach są również WINDY. Spokój i bezpieczeństwo zapewniają sześciokomorowe okna trójszybowe. Podwyższyliśmy standard, instalując WIDEODOMOFONY. Z kolei innowacyjne podejście do aranżacji klatki schodowej sprawia, że inwestycja jest ciekawsza wizualnie i wygodniejsza dla mieszkańców.

Winda

Wygodny dostęp do każdeertego piętra

Wideodomofon

Bezpieczna kontrola dostępu do budynków

Zdalne sterowany

Inteligentne rozwiązania dla większej wygody

Osiedle ogrodzone

Spokój i prywatność dla mieszkańców

Tarasy

Idealna przestrzeń na chwile relaksu

Teren rekreacji

Miejsce do wypoczynku dla całej rodziny

Hala garażowa

Bezpieczne miejsce dla Twojego auta

Udogodnienia dla niepełnosprawnych

Przestrzeń dostępna dla wszystkich

Komórki lokatorskie

Dodatkowa przestrzeń do przechowywania

Galeria
Zobacz sam

Monika Mikołajczak

Specjalista ds. sprzedaży

Zadzwoń +48 730 740 667

Mieszkanie
Więcej informacji

Rzut kondygnacji
Mapa inwestycji
Rzut stanowi plan lokalu, zaś przedstawione dodatkowo sprzęty są jedynie poglądowe i nie stanowią oferty zgodnie Art. 66 Kodeksu Cywilnego.
Zestawienie powierzchni
hol11,80 m²
salon z aneksem28,17 m²
łazienka4,42 m²
pokój8,83 m²
pokój8,41 m²
Rzut kondygnacji
Mapa inwestycji

Mieszkania dostępne od zaraz

Zobacz jak wygląda nasz standard wykonania i umów się na spotkanie.

Charakterystyka wykończenia

Drzwi

w kolorze czarnym

klamki w kolorze czarnym

Listwy przypodłogowe

listwy w kolorze czarnym

Podłoga

panele winylowe w kolorze ciemnego drewna

Wykończenie ścian i sufitów

ściany malowane w kolorze szarym

sufit malowany w kolorze białym

dekoracyjna ścianka – efekt betonu

Kontakty i włączniki

oprawy kontaktów i włączników w kolorze białym

przy zabudowie kuchennej w kolorze czarnym

Łazienka

płytki w formacie 60 x 60 cm na posadzce w kolorze beżowym z białym

płytki w formacie 60 x 60 cm na ścianie w kolorze brązowym z wzorem kamiennym

płytki imitujące drewno

sufit malowany w kolorze białym

armatura w wykończeniu chromowym (bateria umywalkowa, zestaw prysznicowy z baterią prysznicową)

ceramika (umywalka, miska wc)

parawan nawannowy

lustro podświetleniem LED doświetlającym twarz

szafka podumywalkowa w kolorze dębu naturalnego

przycisk spłuczki wc w wykończeniu chromowym

Kuchnia

górne szafki z płyty laminowanej w kolorze drewna orzechowego – fronty bezuchwytowe

dolna cześć zabudowy z płyty laminowanej w kolorze jasnoszarym

blat kuchenny we wzorze marmuru

uchwyty w kolorze czarnym

sprzęt AGD – lodówka, piekarnik, płyta indukcyjna, zmywarka oraz okap

zlewozmywak w kolorze czarnym

bateria w kolorze czarnym

Oprawy oświetleniowe

utrzymane w kolorystyce łączącej czerń ze złotem

Monika Mikołajczak

Specjalista ds. sprzedaży

Zobacz
inne realizacje

Mapa inwestycji